Available

Frisco - Transitional

3909 Perspective St
El Paso, TX 79938
$289,950

1,514 SqFt

4 Beds

2 Full

2 Car Garage
Download Floorplan    Request Info

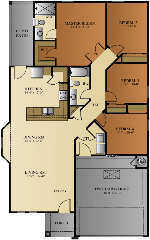
Introducing the Frisco by BIC Homes in it’s Transitional elevation, a remarkable single-story home featuring 4 bedrooms, 2 bathrooms, and 1,514 square feet of space. The transitional elevation of the Frisco showcases the blend of traditional and contemporary styles. The Frisco comes standard with many amenities designed to make living comfortable and efficient. Upon walking in, you are greeted by the open concept layout which seamlessly blends the living, dining, and kitchen spaces together. The kitchen boasts tiled backsplash, quartz or granite countertops, an ample sized pantry, and stainless steel appliances. Access to the back covered patio will be at the corner of the kitchen where you will find the atrium fiberglass door with an integrated mini-blind for privacy and light control.

Upon reaching the hallway, you will find the laundry room with direct access to the insulated garage. Among the hallway is a storage closet followed by the bedrooms and first bathroom. Upon reaching the end of the hallway, the primary bedroom welcomes you with double doors. Inside the spacious primary suite you will find a walk-in closet and the primary bathroom.

The Frisco is thoughtfully appointed with durable, sleek, and modern finishes to ensure a timeless look. Tiled flooring is standard in main living areas and bathroom while the bedrooms stay cozy with plush carpeting. Every space in the Frisco is designed to support the way you live, gather, and grow. It’s a home offering lasting comfort and a place to truly make your own.

3d house front View

East Side

New Single Family Homes in El Paso, TX

New Homes From $270s

  Model Home: 3805 Aspire Pl, El Paso, TX 79938

Request Information

Monday – Sunday:  8am – 5pm

Enjoy the Area
El Paso, TX


Local Area

Parks & Recreation in Eastside Community

  • Imagine Park
  • Spanish Castle Park
  • Tierra Vista Park
  • Sunny Brook Park
  • Eastside Sports Complex
  • Oasis Water Park
  • Cinemark East Montana & XD Movie Theater
  • Salvador Rivas Jr. Spray Park
  • X-Zone
  • Brisa del Este Park

Hospitals in Eastside Community

  • The Hospitals of Providence East Campus

Greater El Paso Area

  • El Paso Zoo and Botanical Gardens
  • San Jacinto Plaza
  • El Paso Chihuahua’s Baseball
  • El Paso Locomotive Football Club
  • Indian Cliff’s Ranch at Cattleman’s Steakhouse
  • Keystone Heritage Park
  • Hueco Tanks State Park & Historic Site
  • Jungle Reef Aquarium

Schools

Elementary Schools

  • James P. Butler Elementary School
  • Cactus Trails Elementary School
  • Sgt. Jose F Carrasco Elementary

Middle Schools

  • SSG Manuel R. Puentes Middle School
  • Spec. Rafael Hernando III Middle School

High Schools

  • Pebble Hills High School

Charter Schools

  • IDEA Public Schools Edgemere

East Side

Contact Sales

    Do you agree to Opt-In to Text Communication?* (required)
    YesNo

    * Required

    All information is deemed reliable. No representation is made, and BIC Homes does not guarantee the accuracy of any information provided. All information must be independently verified. Square footage is approximate and may vary upon elevation and/or options selected. Exterior elevation images and floorplans are artist renderings and are representative only. Optional upgrades may be shown. BIC Homes reserves the right to modify plans, specifications, and price without notice or obligation. Please see your New Home Consultant for more information.Images are for representation purpose only. Contact our New Home Consultant for current plans and selections.